

Ellis Island
A National Icon
Ellis Island is both an iconic historic site of the American immigrant experience and an enduring historic symbol of a national story of immigration. The reimagined Ellis Island National Museum of Immigration will illuminate the richness and dynamism of these narratives weaving together the past with today’s immigration experience.
A New Vision
The Narrative Approach
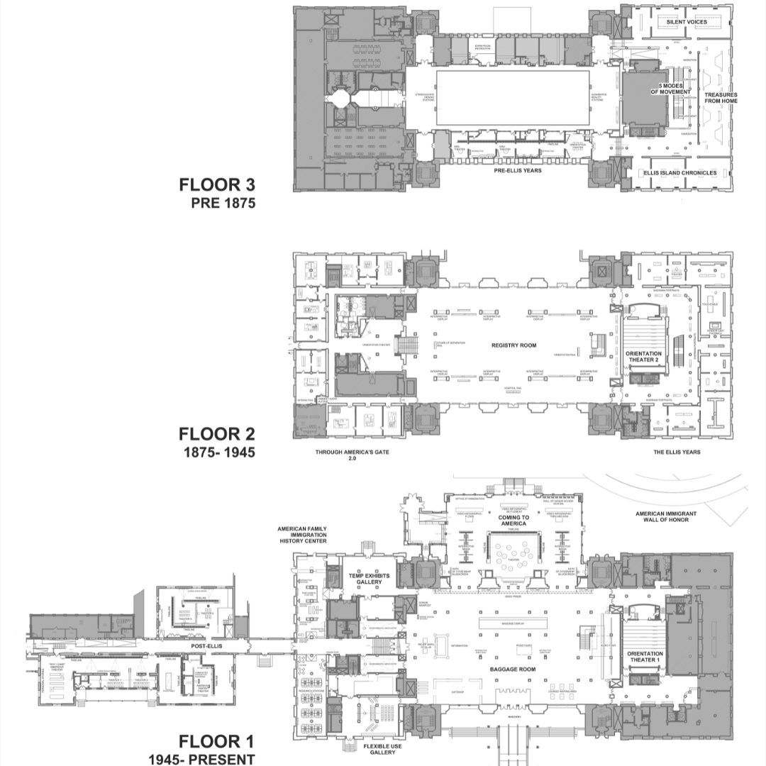
The reimagined museum will dedicate each of the historic structure’s three floors to a particular era, with the relevance to Ellis Island woven throughout. Visitors can tailor the experience based on areas of interest and available time.


Our Plan
6 Themes Woven Together
To make exhibits accessible, engaging, and easily navigable, the museum is organized by six overarching and intersecting key narratives, each revealing the multiple facets of immigration history and the immigrant experience: [1]Drivers of Migration [2]U.S and the World [3] U.S Policy [4] Nativism [5] Becoming American/Shaping America [6] Communities.
Theme One
Drivers of Migration
The multilayered and intersecting factors that motivate, facilitate, and encourage migrants to leave their homes and journey to the US (or the land that would become the US)
News
U.S and the World
The ways in which global movements and migrations shape—and are shaped by—America’s encounters/conflicts/diplomacy/wars/ treaties with nations/tribes/communities around the world.

US Policy
US immigration policies including exclusion, regulation, refugee policies, and citizenship/naturalization
Donate
Give a gift today and help us preserve The Statue of Liberty and Ellis Island for years to come.
Have questions?
We are not. The Statue of Liberty-Ellis Island Foundation is an independant nonprofit. A successful private-public partnership, we work closely with the National Park Service to maintain two remarkable monuments to freedom.
The Foundation fosters an understanding of and appreciation for the Statue of Liberty and Ellis Island through a number of education programs and community enrichment initiatives. Select efforts include: overseeing the Ellis Island National Museum of Immigration and the Statue of Liberty Museum; maintaining the American Family Immigration History Center and the databases of passenger records; enabling access to the parks’ natural and cultural treasures.
To get to Ellis Island visitors must take a ferry from either Battery Park in Manhattan or Liberty State Park in New Jersey. Visitors should know Statue Cruises is the only authorized concessionaire permitted to sell tickets and provide ferry access to Liberty and Ellis Islands.
If you wish to visit the islands, you should avoid street vendors peddling tickets in and around Battery Park. Tickets sold by street vendors will not provide access to the grounds on Liberty Island and Ellis Island, nor do they offer entry to Statue of Liberty Museum or The Ellis Island National Museum of Immigration.